el's Garden
house
分譲住宅
エルズガーデン西庄3号地
姫路市西庄乙111番9
3,230万円
(外構工事費・消費税込)
物件概要
| 価格 | 3,230万円 |
|---|---|
| 所在 | 姫路市西庄乙111番9 |
| 交通 | JR『播磨高岡』駅まで徒歩14分(約1.1㎞) |
| 敷地面積 | 133.42㎡(40.35坪) |
| 地目 | 宅地 |
| 権利 | 所有権 |
| 用途地域 | 第一種住居地域 |
| 接道状況 | - |
| その他制限 | - |
| 構造・階数 | 木造2階建 |
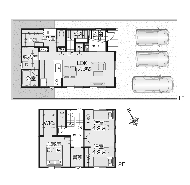
| 建物面積 | 100.19㎡(30.30坪) |
| 間取り | 3LDK |
| 完成 | 2026年4月予定 |
| 建築確認番号 | HK25-11760 |
設備
| 水道 | 公共上下水道 水道分担金(20mm):150,810円 |
|---|---|
| ガス | 都市ガス(大阪ガス) |
| 電気 | 関西電力(オール電化) |
| 道路 | 東側:幅員4.35m |
| 特典 | ・全室照明器具 ・1階カーテン ・家具一式 ・エアコン2台(リビング・主寝室) ・住宅性能評価付き ・長期優良住宅 |
| 取引態様 | 売主(神姫バス不動産株式会社) |
| 物件コード |



