el's Garden
house
分譲住宅
エルズガーデン太子鵤Ⅲ1号地
揖保郡太子町鵤149-28
3,285万円
(外構工事費・消費税込)


物件概要
価格 | 3,285万円 |
---|---|
所在 | 揖保郡太子町鵤149-28 |
交通 | 『東南西口』バス停まで徒歩2分(約160m) 姫路駅47分 |
敷地面積 | 143.59㎡(43.43坪) |
地目 | 宅地 |
権利 | 所有権 |
用途地域 | 第一種住居地域 |
接道状況 | - |
その他制限 | - |
構造・階数 | 木造2階建 |
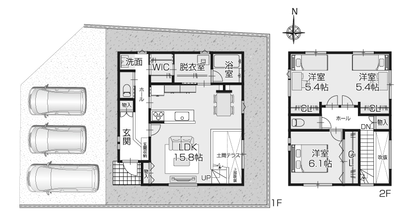
建物面積 | 97.29㎡(29.43坪) |
間取り | 3LDK |
完成 | 令和8年2月頃 |
建築確認番号 | HK25-11048号 |
設備
水道 | 公共上下水道 水道分担金(20mm):138,500円 |
---|---|
ガス | 都市ガス(大阪ガス) |
電気 | 関西電力(オール電化) |
道路 | 幅員約6.0m(団地内) |
特典 | ・全室照明器具 ・1階カーテン ・家具一式 ・エアコン2台(リビング・主寝室) ・住宅性能評価付き ・長期優良住宅 |
取引態様 | 売主(神姫バス不動産株式会社) |
物件コード |